
Superbe immeuble idéalement situé au cœur de Dinant, offrant une magnifique vue sur Meuse.
Cette jolie bâtisse se présente en excellent état et se compose de deux logements.
Actuellement, l’appartement du rez-de-chaussée est loué en hébergement touristique. Le triplex à l’étage offre de beaux espaces lumineux avec une vue imprenable sur la Meuse.
Cet immeuble jouit d’un emplacement idéal, à proximité directe de toutes les commodités (gare train, bus, commerces, grands axes,…).
Nombreuses sont les possibilités d’exploitation (commerce, résidence, tourisme,…) !
Idéal à titre d’investissement.
Faire offre à partir de 350.000€
Cette annonce ne constitue pas une offre, mais seulement un appel à négociation lancé aux candidats acquéreurs.
COMPOSITION :
Gîte :
Sous-sol : Caves communes.
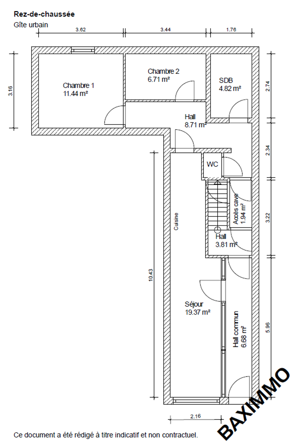
Rez-de-chaussée : Hall d’entrée commun, séjour avec espace cuisine, hall de nuit, 2 chambres, salle de bains et WC.
Triplex :
Sous-sol : Caves communes.
Rez-de-chaussée : Hall d’entrée commun et hall privatif.
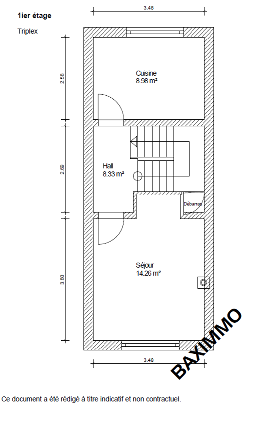
1ier Etage : Hall d’entrée, séjour, cuisine et buanderie.
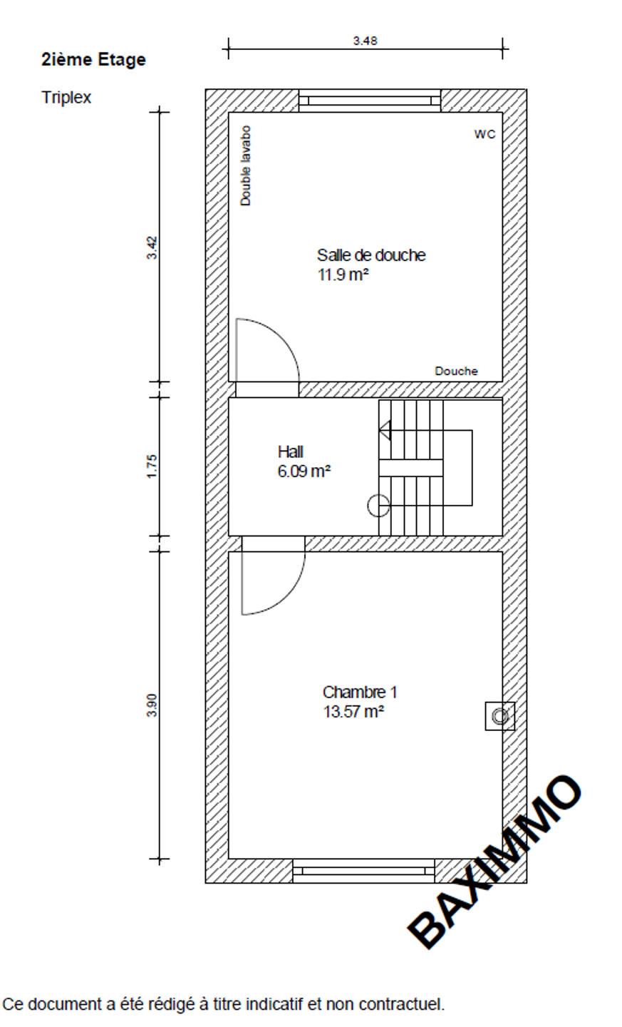
2ième Etage : Hall, salle de douche et une chambre.
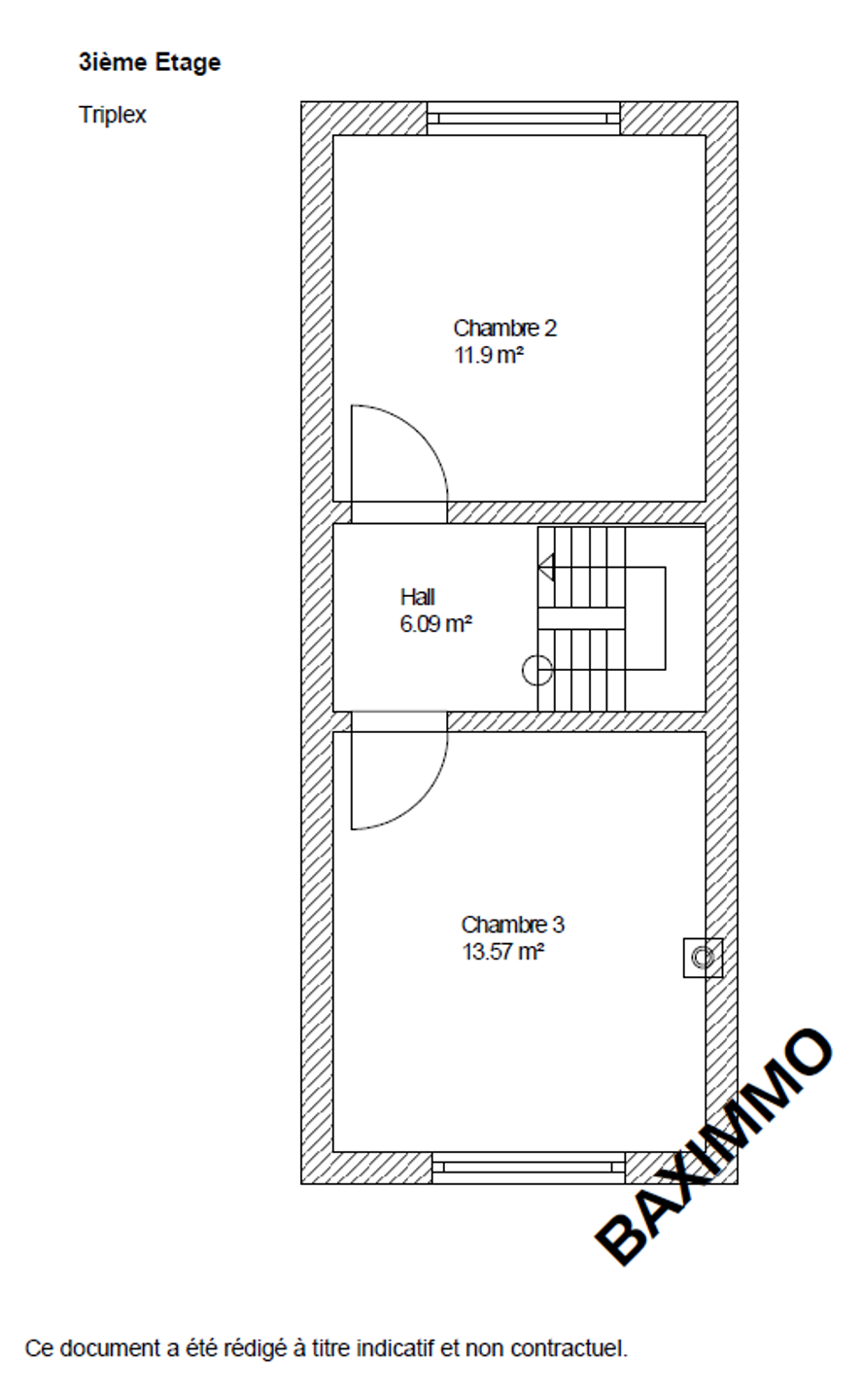
3ième Etage : Hall de nuit et 2 chambres.
Référence | 7034194 |
---|---|
Catégorie | Maison |
Meublé | Non |
Nombre de chambres | 5 |
Nombre de salles de bain | 2 |
Garage | Non |
Terrasse | Non |
Parking | Non |
Surface habitable | 179 m² |
Surface du terrain | 77 m² |
Disponibilité | 06/05/2025 |
Nombre d'étages | 3 |
---|
Nombre de garage | 0 |
---|---|
Nombre de parking | 0 |
Cuisine | Oui |
---|---|
Ascenseur | Non |
Double vitrage | Oui |
Chauffage (type) | gaz (chau. centr.) |
Type de cuisine | équipée |
Sdb (type) | douche |
Buanderie | Oui |
---|---|
Cave | Oui |
Nbre de cave(s) (nombre) | 1 |
---|
Piscine | Non |
---|
Sous régime TVA | Non |
---|
Égouts | Oui |
---|---|
Électricité | Oui |
Télévision par cable | Oui |
Gaz | Oui |
Câbles téléphoniques | Oui |
Eau | Oui |
Châssis (type) | pvc |
---|
Magasins | Oui |
---|---|
Ecoles | Oui |
Transports en commun | Oui |
Gare | Oui |
Label PEB (classe) | C |
---|---|
PEB E-SPEC (kwh/m²/an) | 209 |
Emission CO2 (émission CO2) | 39 |
E total (Kwh/an) | 17104 |
PEB code unique | 20240815001349 |
PEB valide jusqu'au (datetime) | 15/08/2034 |
Date du PEB (datetime) | 15/08/2024 |
Risque d'inondation 2023 (type innondation) | Classe A (aucune chance) |
---|