
Charmante demeure sise en bord de Meuse à Dinant.
Celle-ci profite de beaux espaces lumineux et de quatre chambres.
Cette jolie villa demandera quelques travaux de rafraichissement afin de retrouver toute sa splendeur.
Idéalement située au calme, à seulement quelques minutes du centre de Dinant et de toutes ses facilités.
Possibilité de faire usage d’un embarcadère à proximité directe.
L’habitation dispose d’une jolie petite cour avant avec vue sur Meuse.
A découvrir absolument !
COMPOSITION :
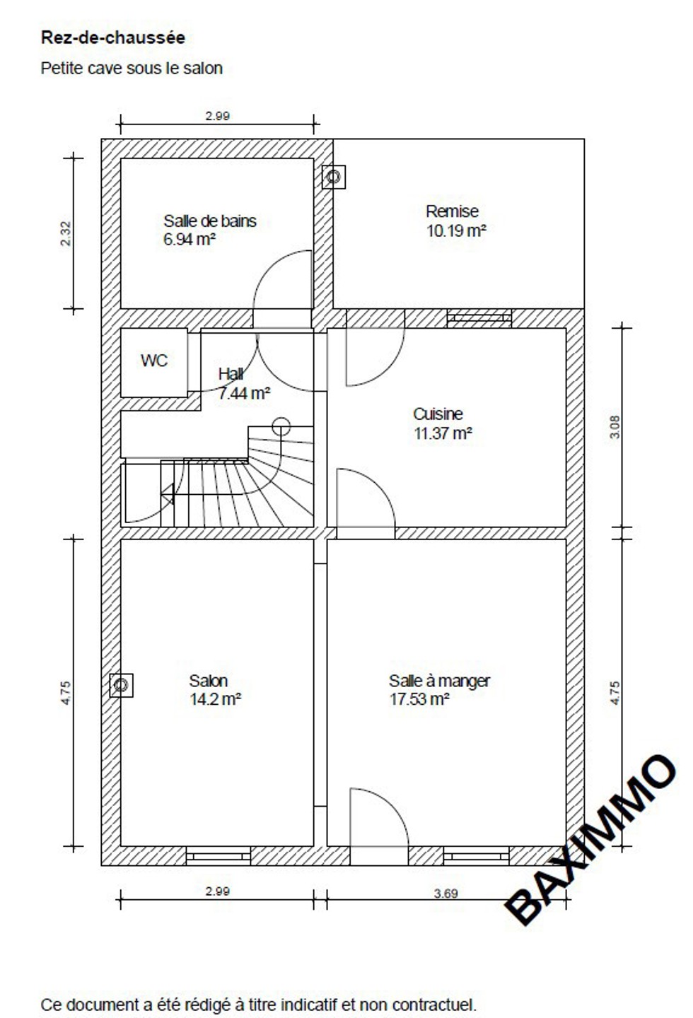
Sous-sol : Petite cave sous le salon.
Rez-de-chaussée : Séjour, cuisine, remise, salle de bains, hall et WC.
1ier Etage : Hall de nuit, 4 chambres dont deux en enfilade.
2ième Etage : Grenier entièrement aménageable.
Extérieur : Cour en façade avant.
Référence | 6081988 |
---|---|
Catégorie | Maison |
Meublé | Non |
Nombre de chambres | 4 |
Nombre de salles de bain | 1 |
Garage | Non |
Terrasse | Oui |
Parking | Oui |
Surface habitable | 155 m² |
Surface du terrain | 110 m² |
Disponibilité | 17/07/2024 |
Nombre d'étages | 2 |
---|
Cuisine | Oui |
---|---|
Ascenseur | Non |
Chauffage (type) | gaz (chau. centr.) |
Type de cuisine | semi-équipée |
Sdb (type) | bain |
Nbre de cave(s) (nombre) | 1 |
---|
Piscine | Non |
---|
Sous régime TVA | Non |
---|
Égouts | Oui |
---|---|
Électricité | Oui |
Télévision par cable | Oui |
Câbles téléphoniques | Oui |
Eau | Oui |
Châssis (type) | bois |
---|
Magasins | Oui |
---|---|
Ecoles | Oui |
Transports en commun | Oui |
Gare | Oui |
Grenier | Oui |
---|
Label PEB (classe) | D |
---|---|
PEB E-SPEC (kwh/m²/an) | 321 |
Emission CO2 (émission CO2) | 59 |
E total (Kwh/an) | 49720 |
PEB code unique | 20221214013448 |
PEB valide jusqu'au (datetime) | 14/12/2032 |
Date du PEB (datetime) | 14/12/2022 |
Nombre de parking | 1 |
---|